

Arverne East
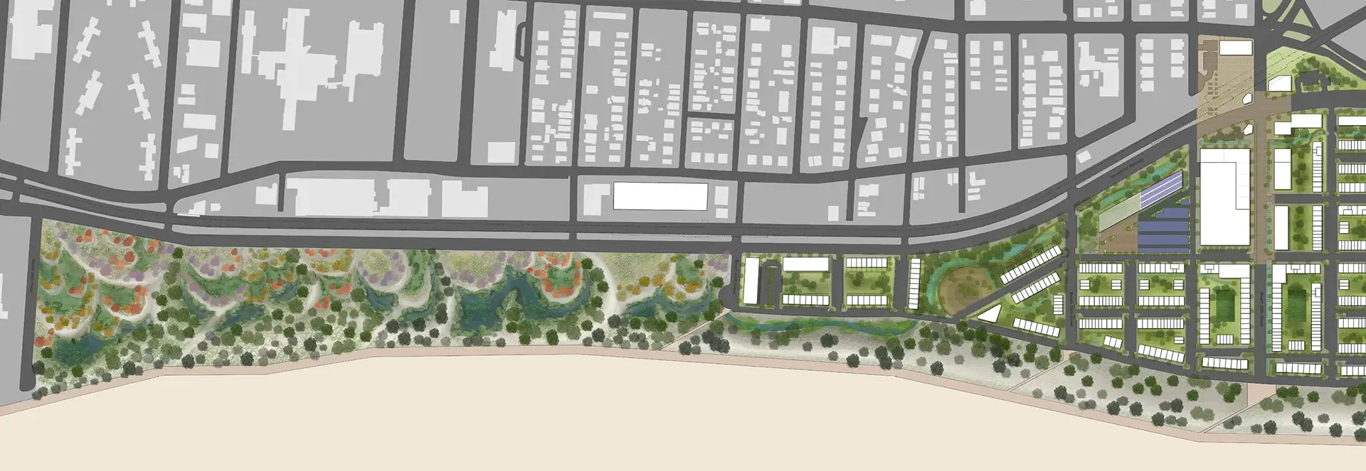
Arverne East is a multi-faceted development that is transforming a long vacant site on the South Queens oceanfront within the Arverne and Edgemere neighborhoods. The development is defined and driven by continued community engagement and is being built with resilient and sustainable features that proactively combat weather related risks and optimize energy efficiency.
The project aims to deliver significant rental and homeownership opportunities across a diverse range of income levels; over 60 acres of outdoor, programmed recreation space; and retail and community spaces driven by local needs and supporting local jobs and businesses.
Queens, NY
Arverne
Multi-family Residential
1,650 (80% affordable to broad range of incomes/20% market-rate)
Ongoing
Various
Achievements
Affordable Residential Units
Market Rate Residential Units
Publicly Accessible Open Spaces























The Challenge
Turning a Vacant Oceanfront Site into Community
Transform a 116-acre vacant, oceanfront site into a resilient, inclusive community through development of housing, publicly accessible nature preserve, and diverse commercial spaces and substantial infrastructure improvements.

